Page suivante
Page précédente
Loudenvielle (65510)

Terrain à batir

Réf V10000123

" VENDU "


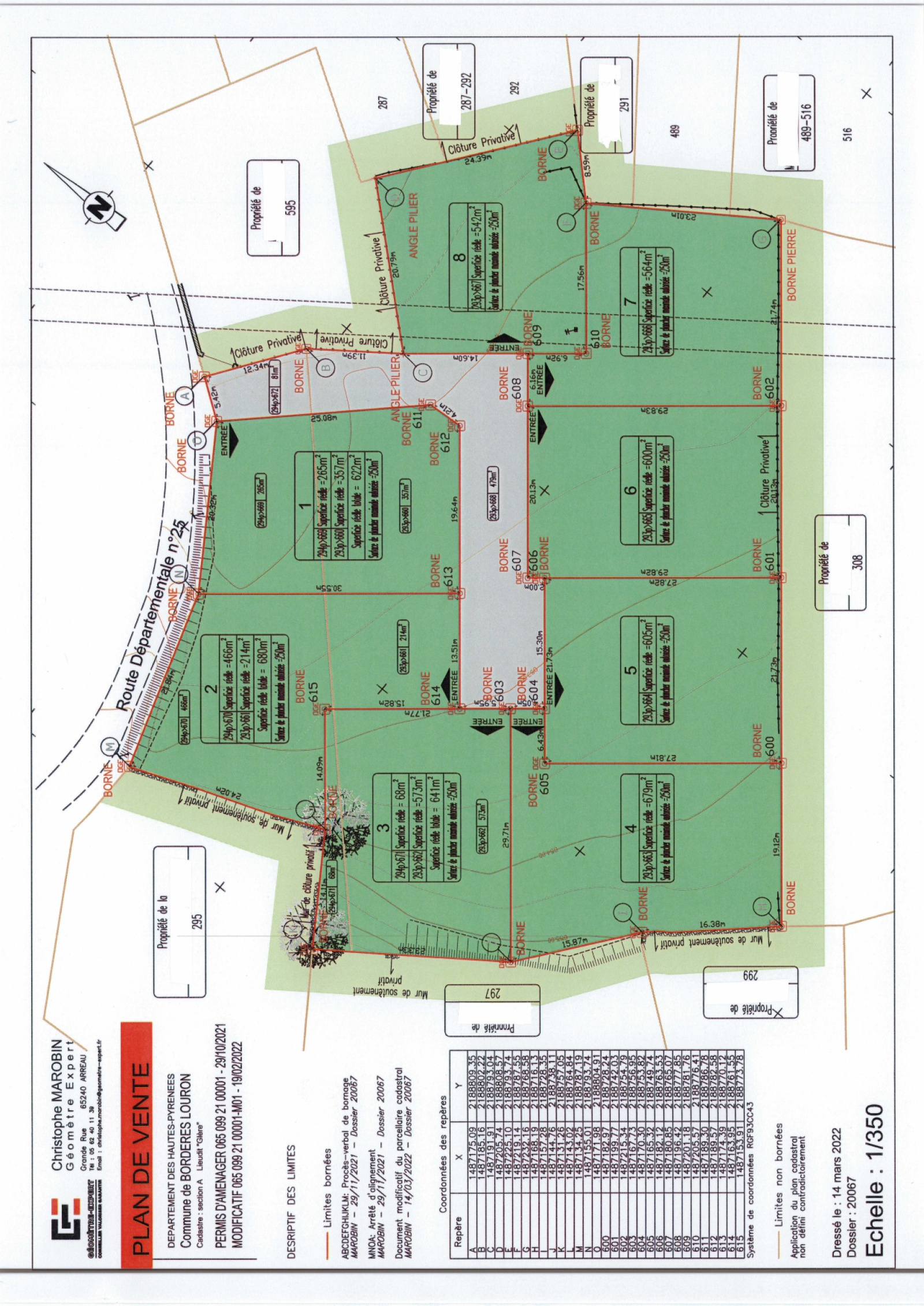
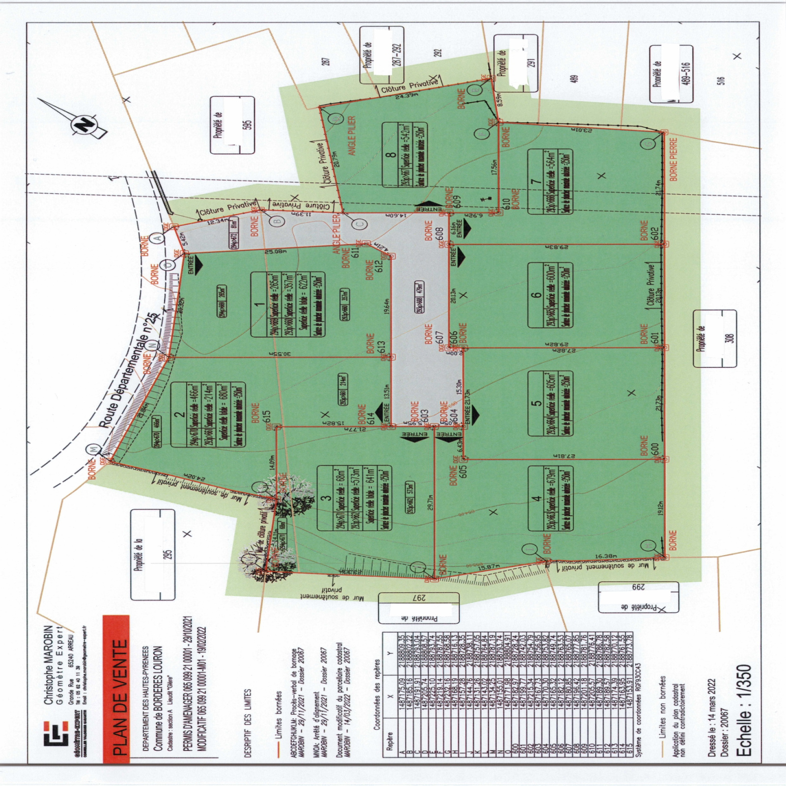
A Bordères-Louron, à seulement quelques minutes de Loudenvielle et d'Arreau, produit rare à saisir : un lot disponible !


Ici, LOT 4 :

Exposition Sud idéale pour ce terrain plat de 679m² viabilisé : eau / électricité / assainissement en limite de propriété.

Vue sur la nature !

La voie qui dessert les lots deviendra communale. L'entretien et le déneigement seront donc pris en charge par la commune.


Les terrains sont rares dans la vallée !

Si vous avez un projet de résidence principale, ou de résidence secondaire, ce terrain est fait pour vous.


Pour tout complément d'information, contactez l'Agence du Louron à Loudenvielle

Bilan énergétique

Diagnostics énergetiques
A propos de ce bien Caractéristiques de ce bien
  • terrain 679 m²
  • exposition Sud

Financier

Informations financières
Les honoraires d'agence seront intégralement à la charge du vendeur  

Autour du bien

Découvrez le quartier

Simulation

Calcul des mensualités
* Champs obligatoires
Marie COMPAGNET Négociatrice