Page suivante
Page précédente
Loudenvielle (65510)

Terrain à batir

Réf V10000109

" VENDU "


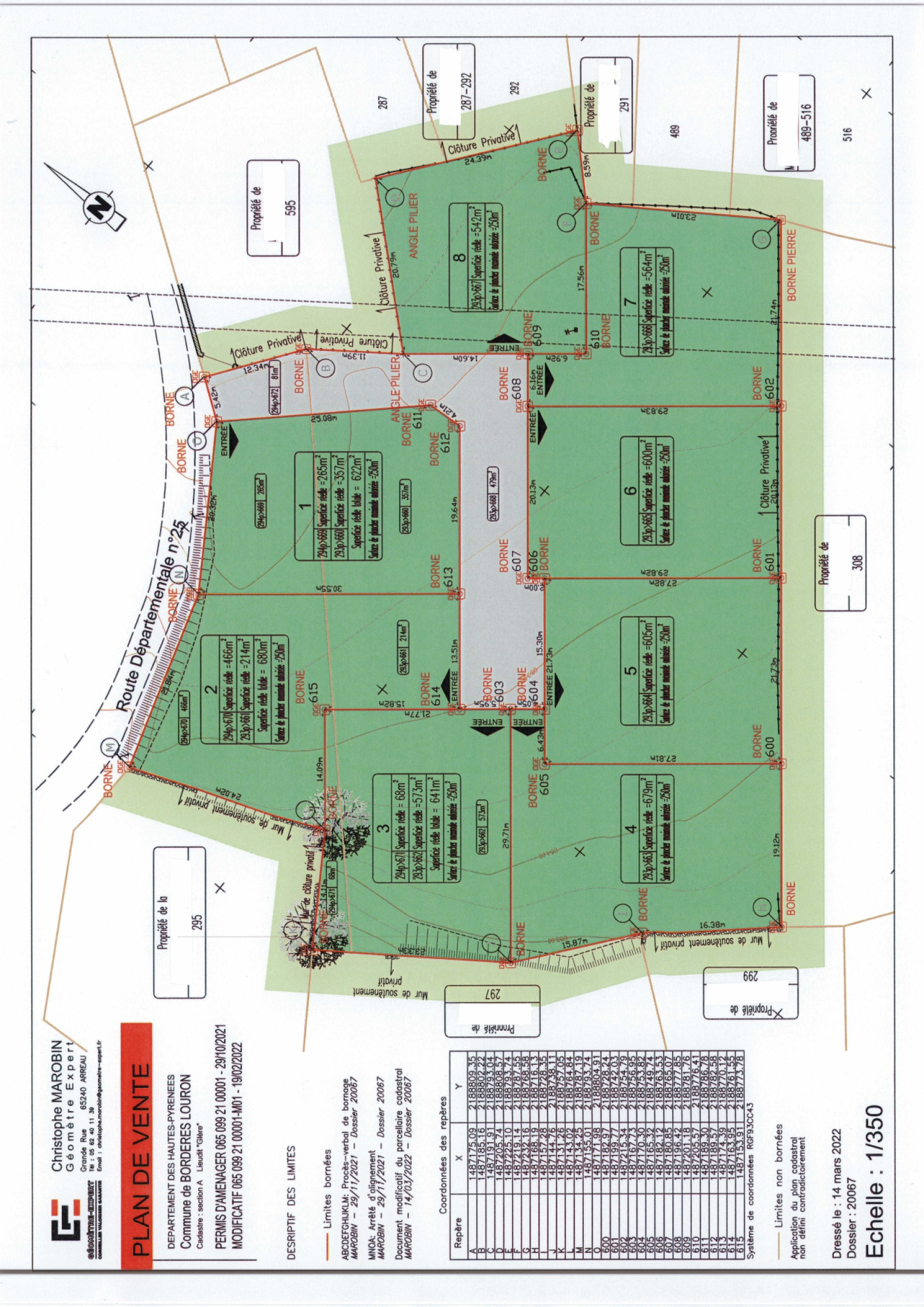
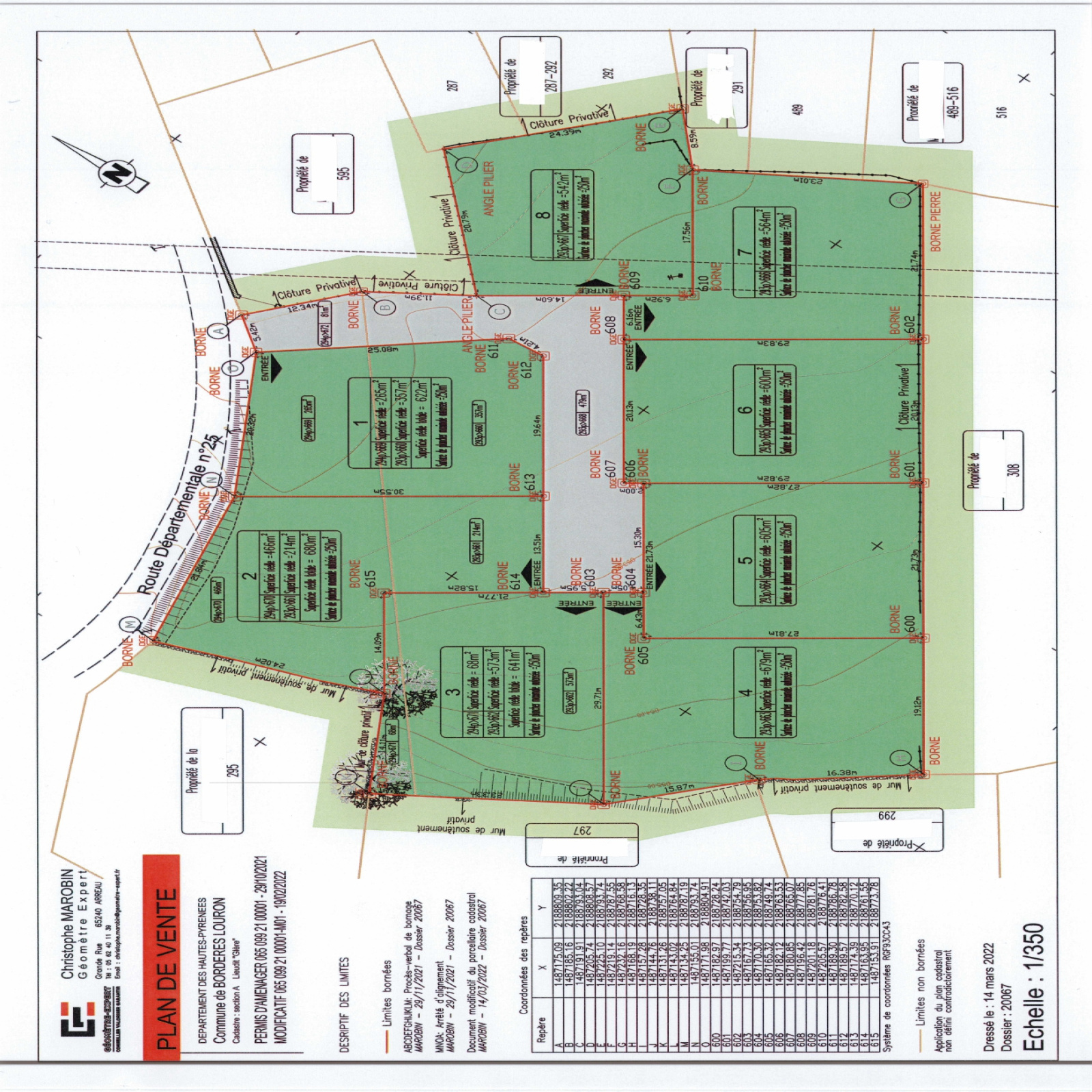
A Bordères-Louron, à seulement quelques minutes de Loudenvielle et d'Arreau, produit rare à saisir !

Plus que quelques lots disponibles !


Ici, LOT 5 :

Exposition Sud, avec vue dégagée !

Terrain plat constructible de 605m² viabilisé : eau / électricité / assainissement en limite de propriété.

La voie qui dessert les lots deviendra communale. L'entretien et le déneigement seront donc pris en charge par la commune.

Les terrains sont rares dans la vallée !

Si vous avez un projet de résidence principale, ou de résidence secondaire, ce terrain est fait pour vous !

Bilan énergétique

Diagnostics énergetiques
A propos de ce bien Caractéristiques de ce bien
  • terrain 605 m²
  • exposition Sud

Financier

Informations financières
Les honoraires d'agence seront intégralement à la charge du vendeur  

Autour du bien

Découvrez le quartier

Simulation

Calcul des mensualités
* Champs obligatoires
Marie COMPAGNET Négociatrice