Loudenvielle (65510)

Immeuble 600.67 m²

Réf V10000039

" VENDU "


" L'HÔTEL PEYRESOURDE "

Sur la commune de Bordères-Louron, à 10 minutes de Loudenvielle, et proche d'Arreau.

Bien idéal pour les investisseurs !

Cet immeuble de près de 600m² comprend, en rez-de-chaussée, les anciennes salles de restaurant, le hall d'entrée, et la cuisine.

Et les deux étages comprennent, au total, 18 chambres avec chacune une salle d'eau.

Partiellement rénové, il offre de multiples possibilités d'aménagement : hôtel, auberge de jeunesse, gîte de groupe, commerces...

Il est possible de créer 8 appartements du T2 au T3 (location annuelle : entre 500€ et 600€/mois/apt), et des locaux commerciaux avec larges vitrines.

Ces lots ainsi créés trouveront facilement des locataires à l'année.

Au sud, se trouve une terrasse; et à l'ouest, un agréable verger.

Plans et photos visibles sur www.agencedulouron.fr


Les informations sur les risques auxquels ce bien est exposé sont disponibles sur le site Géorisques

Bilan énergétique

Diagnostics énergetiques
A propos de ce bien Caractéristiques de ce bien
  • Surface 600,67 m²
  • terrain 708 m²
  • 18 salle(s) d'eau
  • construit en 1950
  • cuisine
  • Chauffage autre : chaudière (fioul)
  • 3 niveau(x)
  • balcon
  • terrasse
  • arboré

Composition

Composition de ce bien

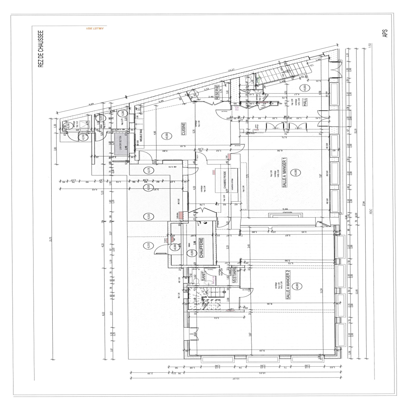
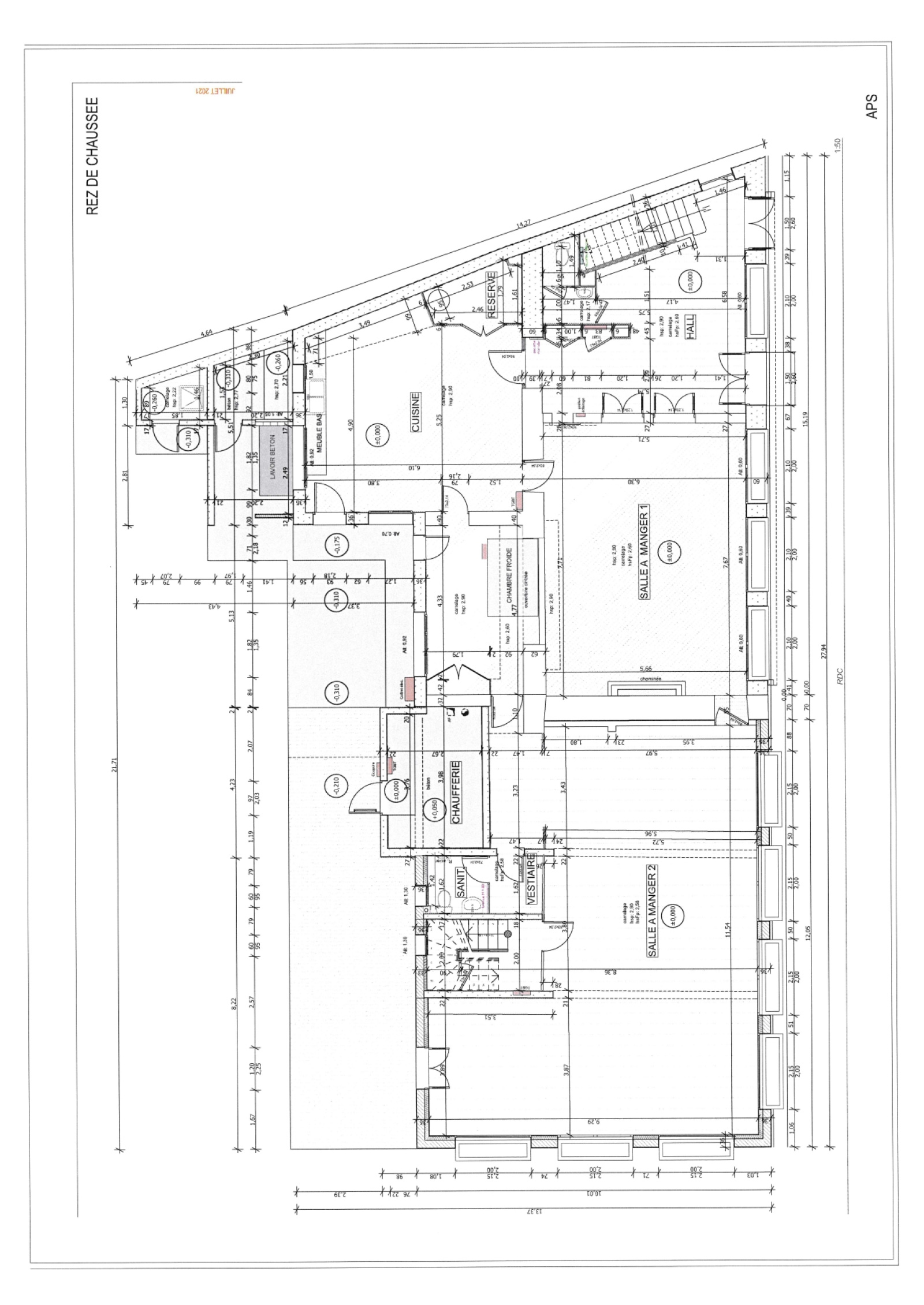
Rez-de-chaussée

  • entrée 25.17 m²
  • WC 2.7 m²
  • salle 44 m²
  • salle 88.40 m²
  • Dégagement 2.42 m²
  • WC 2.80 m²
  • Escalier 3.5 m²
  • cuisine 37 m²
  • Arrière cuisine 13.25 m²
  • Chaufferie
  • buanderie
  • cellier

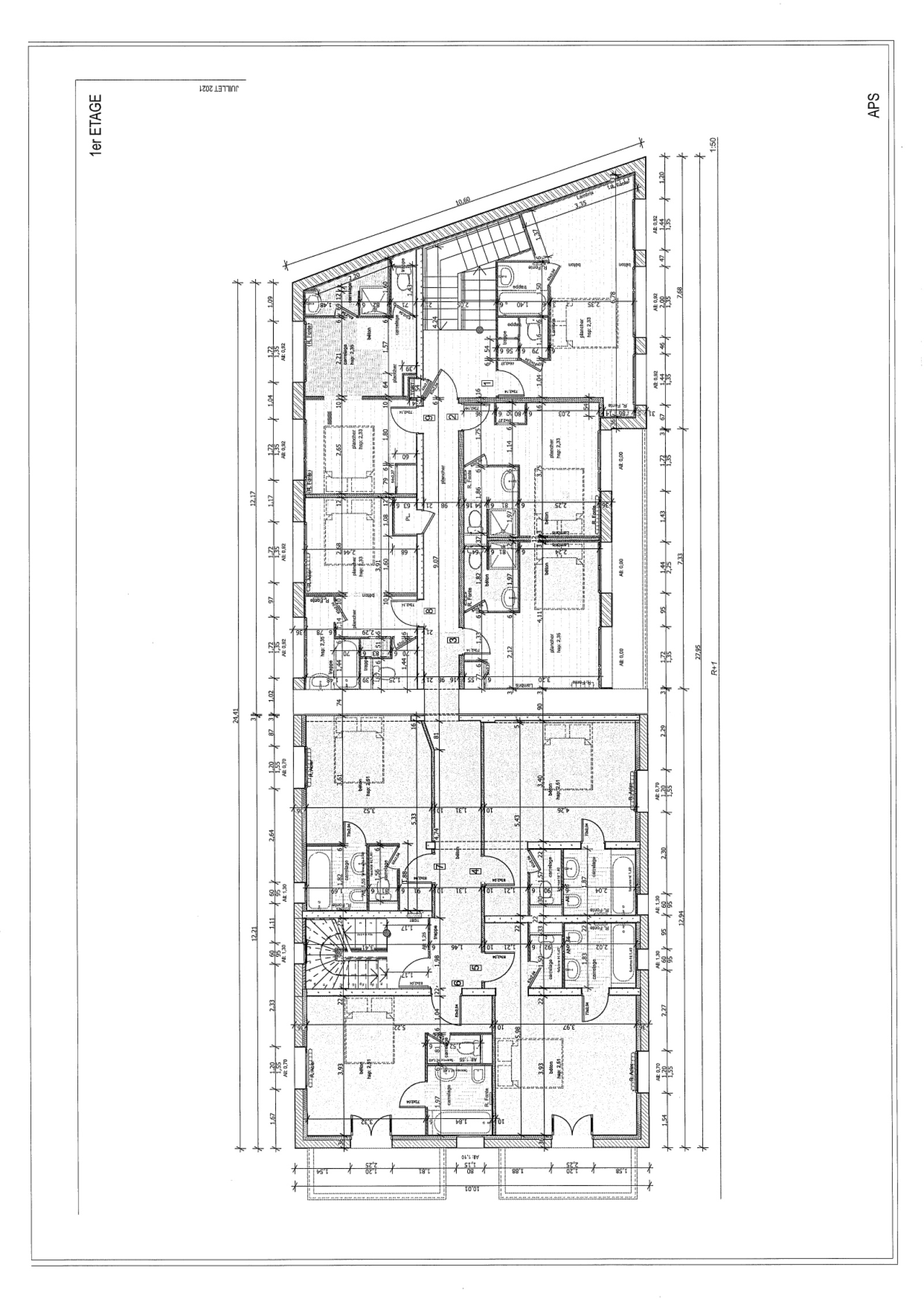
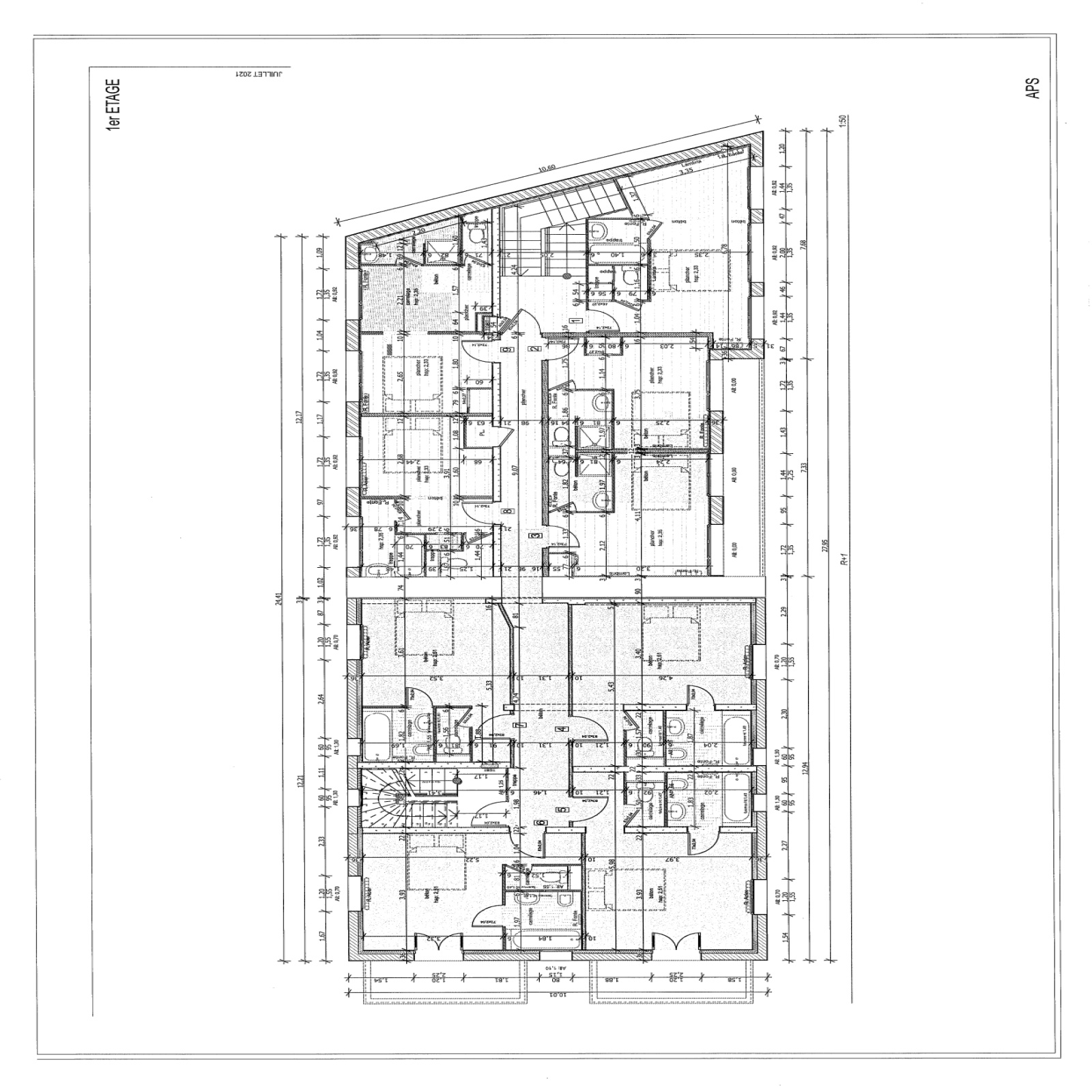
Etage 1

  • Palier 3.97 m²
  • chambre 19.93 m²
  • Dégagement 19.83 m²
  • chambre 14.13 m²
  • chambre 15.38 m²
  • chambre 22.27 m²
  • chambre 22.89 m²
  • chambre 19.84 m²
  • Escalier 2.50 m²
  • chambre 17.80 m²
  • chambre 15.25 m²
  • chambre 18.36 m²
  • balcon
  • balcon
  • balcon

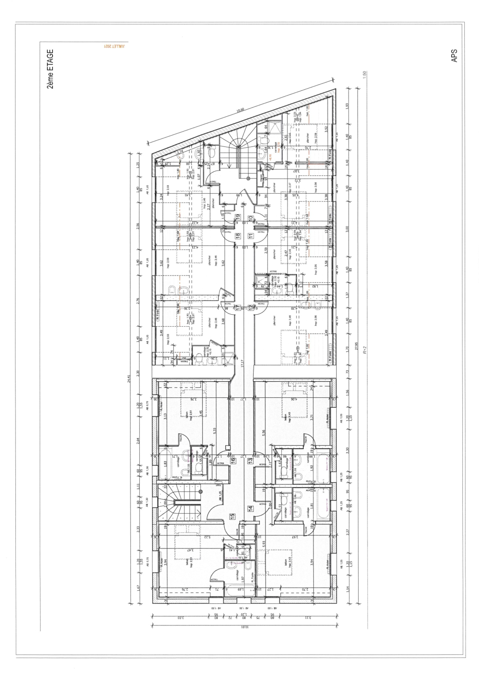
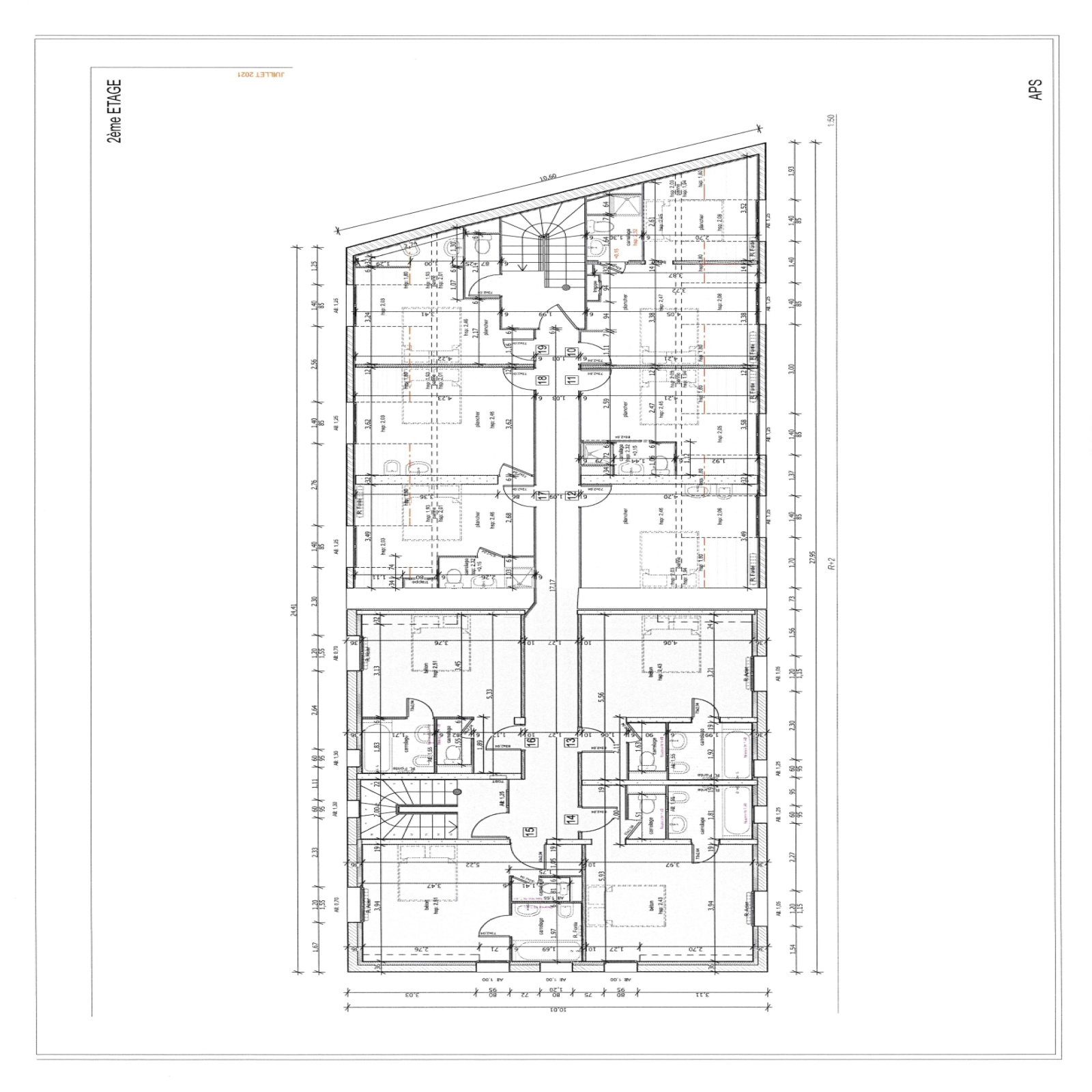
Etage 2

  • Palier 3.80 m²
  • Dégagement 21.34 m²
  • chambre 19.50 m²
  • chambre 11.78 m²
  • chambre 12.15 m²
  • chambre 21.40 m²
  • chambre 22.50 m²
  • chambre 20.10 m²
  • Escalier 2.10 m²
  • chambre 19.37 m²
  • chambre 11.83 m²
  • chambre 11.87 m²
  • chambre 9.80 m²
  • WC 1.74 m²

Financier

Informations financières
Les honoraires d'agence seront intégralement à la charge du vendeur  
Taxe foncière annuelle 3 500 €

Autour du bien

Découvrez le quartier

Simulation

Calcul des mensualités
* Champs obligatoires
Marie COMPAGNET Négociatrice