Page suivante
Page précédente
Germ (65240)

Appartement

244 500 €
Réf O10000306

Située dans le hameau de Balestas, la résidence Les Cîmes de Balestas bénéficie d’un accès aux commerces et restaurants de la station.
Les chalets et les appartements sont tous exposés sud/sud-ouest, et ont été conçus pour offrir des vues panoramiques depuis chaque pièce de vie.

Dotées d’une architecture traditionnelle et contemporaine, les façades sont habillées d’un bardage en lames de bois brossé et d’enduit et de pierres naturelles du pays, créant une harmonie des matières.

La résidence est équipée d’un ascenseur qui dessert l’ensemble des niveaux d’habitation.

Les logements ont été conçus pour maximiser la vue du spectacle extérieur sans oublier le confort de l’intérieur traité avec soin et des matériaux de qualité. Les espaces ont été pensés pour créer bien-être et confort des occupants autant en hiver qu’en été.

Les cuisines disposent de tout l’équipement nécessaire : plaque de cuisson vitrocéramique, hotte, réfrigérateur, four, micro-ondes et lave-vaisselle.

Chaque logement dispose d’un cellier individuel fermé et d’une place de parking.


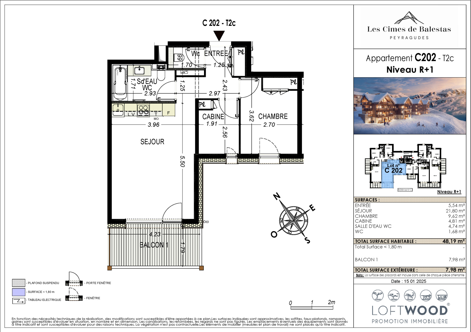
Ici, lot n°K202 :

Situé au premier étage, cet appartement T2 cabine de 48,5m² offre une capacité de 4 à 6 couchages : une entrée avec placard, une pièce de vie de 21,8m² avec espace cuisine, une chambre confortable de 9m² avec placard, une cabine avec placard également, une salle d'eau avec wc, et un wc séparé.

Exposé Sud, vous pourrez profiter de la vue et de l'ensoleillement sur le balcon de 8m².

Cellier privatif, casier à ski, place de parking privative.


A découvrir sans plus tarder avec l'Agence du Louron à Loudenvielle !

Bilan énergétique

Diagnostics énergetiques
A propos de ce bien Caractéristiques de ce bien
  • Surface 48,52 m²
  • carrez 48,52 m²
  • séjour 21,80 m²
  • 1 chambre(s)
  • 1 salle(s) d'eau
  • kitchenette (équipée)
  • Chauffage individuel : radiateur (electrique)
  • 1 parking(s)
  • exposition Sud
  • 2 côté(s) mitoyen(s)
  • 1er étage
  • 3 étage(s)
  • ascenseur
  • balcon

Composition

Composition de ce bien

Rez-de-chaussée

  • entrée 5.54 m²
  • pièce à vivre 21.80 m²
  • chambre 9.62 m²
  • Cabine / Bureau 4.81 m²
  • Salle de bain / wc 4.74 m²
  • WC 1.68 m²
  • terrasse 7.98 m²

Info copro

Copropriété
  • Copropriété Oui

Financier

Informations financières
Prix de vente 244 500 € Les honoraires d'agence seront intégralement à la charge du vendeur

Autour du bien

Découvrez le quartier

Simulation

Calcul des mensualités
* Champs obligatoires
AGENCE DU LOURON Agence